建筑智能化系统安装做法图文全解析
建筑智能化系统主要由安全防范系统、信息通讯网络系统、物业管理与监控系统、基础设施与技术四部分组成,具体组成如下图总结:
下面对整个智能化系统的施工安装做法进行图文展示,分享给盟友们参考!
一、安全防范系统
1、对讲子系统设备安装图示:
门口机墙装图示
门口机配独立底座安装图示
门口机门上装图示
室内分机安装图示
2、周界防越及报警联动子系统设备安装图示:
主动红外探测器安装示意图
3、闭路电视监控子系统设备安装图示:
周界摄像机与红外探测器关系示意图
一体化球机安装示意图
枪机吸顶安装示意图
电梯针孔摄像机安装图示
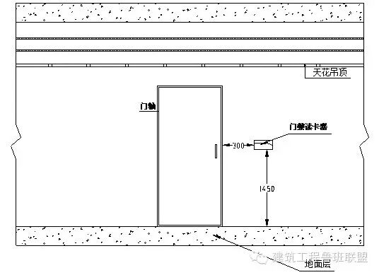
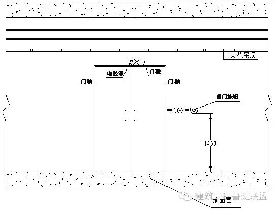
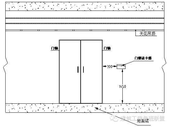
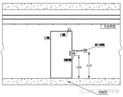
4、门禁管理子系统设备安装图示:
门禁机安装图示(双门,门外侧)
门禁机安装图示(双门,门内侧)
门禁机安装图示(单门,门外侧)
门禁机安装图示(单门,门内侧)
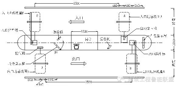
5、停车场管理子系统设备安装图示:
共用岗亭设备安装图示
入口与出口分离设备安装图示
6、电子巡更子系统设备安装图示:
巡更点安装图示
7、室内安防子系统设备安装图示:
门磁开关安装图示
红外/微波双鉴探测器安装图示
幕帘探测器安装图示
燃气探测器安装图示
二、信息通讯网络系统
1、电话子系统设备安装图示:
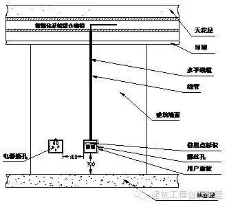
电话插座安装图示
2、有线电视子系统设备安装图示:
有线电视插座安装图示
3、信息网络子系统设备安装图示:
LED显示屏安装图示
LCD显示屏安装图示
LCD触摸屏安装图示
三、 物业管理与监控系统
1、设备监控子系统
2、 背景音乐与紧急广播子系统设备安装图示:
吸顶式扬声器安装图示
壁挂式扬声器安装图示
草坪音箱安装图示
室外扬声器与首层业主家的距离
3、物业管理子系统
四、基础设施与技术
1、电源与接地子系统
2、 中控室机房子系统设备安装图示:
中控室设备布置图示(安防监控室与消防控制室合用)


文档
